ID CP3013626

Casa insiruita cu 4 camere, P+ 1E, plata in 5 ani - transe la Dezvoltator

ID CP3013626

180,000 € TVA inclus

Casă / Vilă cu 4 camere de vânzare
Gai, Arad
94 mp
2026

ID CP3013626

Golden Real Estate vă propune o oportunitate deosebită de a achiziționa o casă la preț de apartament.

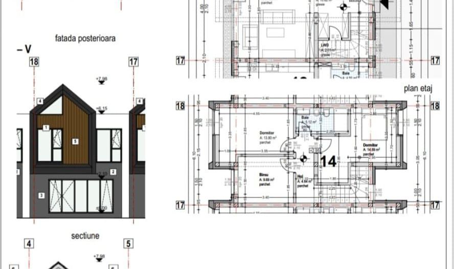
Proprietatea P+1E, face parte dintr-un ansamblu Residențial - Scandinavia Residence, din Arad, vis-a-vis de RAR (Registrul Auto Român). Proprietății îi revine o cotă de teren din suprafața totală a terenului de 3.724 mp, cu un drept de superficie în favoarea dezvoltatorului. La momentul intabulării imobilului i se va transmite în proprietate cumpărătorului cota parte a terenului de 180 mp, suprafața construită fiind 115 mp, iar suprafața utilă este 94 mp.

Ansamblul rezidențial are în componență 20 de unități, dotat cu poartă pietonală și poartă acces auto metalică cu telecomandă, iar accesul pietonal se face pe bază de card/ telecomandă. Spațiile verzi vor fi amenjate, va exista pavaj pe căile de acces și în spatele fiecărui imobil va fi montat gazon rulou.

Construcția este realizată din beton armat, cu zidărie din cărămidă și șarpantă din lemn cu învelitoare din tablă dublu click parțial. Izolația este realizată cu termosistem de 15 cm, finisat cu tencuială decorativă, fațadă ventilată cu vată bazaltică și totodată există termoizolație de 20 cm protejată cu hidroizolație la acoperișul tip terasă.

Compartimentare:

PARTER:

- Living cu bucătărie open-space;

- Baie cu duș și geam;

- Hol acces;

- Spațiu de depozitare;

ETAJ:

- Dormitor matrimonial cu dressing propriu;

- Baie cu duș sau cadă:

- Birou sau dormitor copil;

- Dormitor copil.

Fiecare proprietate dispune de:

- panouri fotovoltaice 3KW și invertor monofazat;

- tâmplărie PVC cu sticlă tripan;

- glafuri și pervaze din tablă;

- gresie antederapantă Premium pe scara de intrare în imobil;

- instalație electrică cu tablou de siguranță echipat;

- prize, întrerupătoare, corpuri de iluminat, benzi luminoase;

- încălzire prin pardoseală prevăzută cu distribuitor, la fiecare nivel;

- pompă de căldură aer-apă ;

- pereți interior tencuiți, glet finisat la pereți, glet finisat la pereți.

- tavan fals din plăci de gips carton, atât la parter cât și la etaj, zugrăviți în alb;

- uși interioare;

- faianță și gresie premium;

- Parchet;

- baterie cu filtre pentru apa rece montată la intrarea apei în imobil;

- robineți, baterii, chiuvete, duș și cadă;

- obiecte sanitare;

- scară urcare parter- etaj finisată complet;

- sistem alarmă;

- video- interfon;

- 2 locuri de parcare, în interiorul Ansamblului Rezidențial.

Modalitate de plată:

1. 10 % avans la semnarea antecontractului;

2. 25% la stadiul de rosu;

3. 20% la montarea instalațiilor;

În maxim 60 zile de la montarea instalațiilor, se va preda imobilul și concomitent se va semna contractul de vânzare cumpărare, iar pentru diferența de preț rămasă de încasat se va institui ipotecă legală în favoarea Vânzătorului.

4. 1.500 euro cu TVA inclus/ lună pentru 5 ani.

Preț: 180.000 euro cu TVA inclus, comision 0%.

Citește mai mult

  • Număr camere
    4
  • Dormitoare
    3
  • Număr bucătării
    1
  • Număr băi
    2
  • Geam la baie
    Da
  • Număr locuri parcare
    2
  • Disponibilitate
    Imediat
  • Tip casă
    Individual
  • Stare interior
    Nou
  • Suprafață utilă
    94 mp
  • Suprafață construită
    115 mp
  • Suprafață teren
    180 mp
  • Stadiu construcție
    În construcție
  • An construcție
    2026
  • Construcție nouă
    Da
  • De la dezvoltator
    Da

Facilități

Apă
Canalizare
CATV
Curent
Gaz
Iluminat stradal
Internet
Mijloace de transport în comun
Străzi asfaltate
Telefon
Estera Tomuța - Golden Real Estate
Estera Tomuța
Consilier Juridic

0371 546 700


Solicită chiar acum o vizionare
Nume
Telefon
Email
Sună acum Solicită vizionare
Necesare:

Site-ul nu poate funcționa corect fără aceste cookie-uri. Vezi cookie-urile

Statistică:

Strângem statistici anonime despre voi, vizitatorii unici, pentru a vă îmbunătăți experiența dumneavoastră. Vezi cookie-urile

Marketing:

Pentru a ne promova mai eficient serviciile noastre, folosim cookies pentru a vă identifica și a vă oferi proprietăți și servicii personalizate. Vezi cookie-urile

Acest site folosește cookies, află detalii. Alege ce tipuri de cookies dorești să permitem: