ID CP2569076

Casa cu teren de 697 mp si 5 dormitoare, Westfield

ID CP2569076

130,000 € (negociabil)

Casă / Vilă cu 6 camere de vânzare
Exterior Vest, Arad
180 mp
2020

ID CP2569076

Golden Real Estate vă propune spre vânzare o casă solidă din cărămidă cu un spațiu util generos și un teren mare de 697, localizat în cartierul Westfield.

Imobilul are o fundație înaltă și solidă, construcția casei fiind din cărămidă porotherm, izolată la exterior, dispune de ferestre cu geam termopan, interiorul locuinței fiind la roșu.

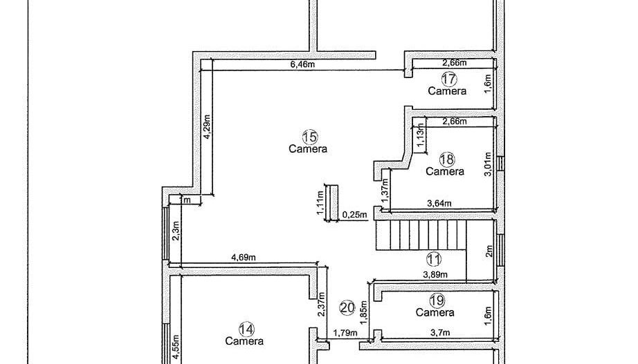
Parterul este alcătuit dintr-un hol încăpător, o bucătărie spațioasă cu loc pentru servirea mesei, o baie, un living spațios și acces la o terasa inchisa.

Mansarda înaltă a casei găzduiște, patru dormitoare spațiose, o cameră de tip spălătorie, și o baie mare.

Datorită compartimentării practice și a spațiului util mare, locuința este perfectă pentru o familie mare .

Preț 130.000 euro, negociabil.

Agent Exclusiv Golden Real Estate.

Citește mai mult

  • Număr camere
    6
  • Dormitoare
    4
  • Număr bucătării
    1
  • Număr băi
    3
  • Geam la baie
    Da
  • Număr balcoane
    2
  • Număr locuri parcare
    2
  • Disponibilitate
    Imediat
  • Tip casă
    Individual
  • Stare interior
    Nou
  • Anul finisării
    2020
  • Suprafață utilă
    180 mp
  • Suprafață construită
    329 mp
  • Suprafață construită la sol (Amprentă)
    212.0 mp
  • Suprafață teren
    697 mp
  • Suprafață curte liberă
    500 mp
  • Deschidere
    15.3 m
  • Acoperiș
    Țiglă
  • Stadiu construcție
    La gri
  • An construcție
    2020
  • Construcție nouă
    Da
  • Tip construcție
    Cărămidă
  • Risc seismic
    Risc III
  • Are mansardă
    Da

Facilități

Acoperiș
Apă
Apometre
Canalizare
CATV
Contor electric
Curent
Ferestre PVC
Geamuri termopan
Iluminat stradal
Internet
Izolație exterioară
Mijloace de transport în comun
Nemobilat
Șapă
Străzi asfaltate
Telefon
Vedere spre oraș
Alexandru Rasunoiu - Golden Real Estate
Alexandru Rasunoiu
Sales Associate

0371 546 700


Solicită chiar acum o vizionare
Nume
Telefon
Email
Sună acum Solicită vizionare
Necesare:

Site-ul nu poate funcționa corect fără aceste cookie-uri. Vezi cookie-urile

Statistică:

Strângem statistici anonime despre voi, vizitatorii unici, pentru a vă îmbunătăți experiența dumneavoastră. Vezi cookie-urile

Marketing:

Pentru a ne promova mai eficient serviciile noastre, folosim cookies pentru a vă identifica și a vă oferi proprietăți și servicii personalizate. Vezi cookie-urile

Acest site folosește cookies, află detalii. Alege ce tipuri de cookies dorești să permitem: