ID CP2449106

Casa P+M la curte comuna, Aradul Nou, comision 0%

ID CP2449106

89,999 €

Casă / Vilă cu 3 camere de vânzare
Aradul Nou, Arad
100 mp
2000

ID: CP2449106

Proprietatea se poate vinde și în rate cu avans de 60%.

Golden Real Estate va propune spre vanzare direct de la dezvoltator 5 case insiruite la curte comună cu terasă proprie, într-o zona foarte cautata de catre cumparatori, in cartierul Aradul Nou, pe Calea Timisorii, aproape de scoli, gradinite, banci, magazine, statie de tramvai si alte puncte de interes ale orasului.

Construite din caramida, cu o grosime a peretilor de 57 cm si plansee de beton, aceste case au o structura de rezistenta foarte solida. Tavanele sunt izolate cu doua straturi de membrana, vata minerala, scandura sau rigips si acoperisul este in garantie 30 ani.

Toate utilitatile au retele noi : apa, canalizare, gaz, sistem de incalzire, curent, internet, cablu si au contoare separate. Fiecare casa are o platforma betonata ( terasa) in fata casei in suprafata de 15 mp. 

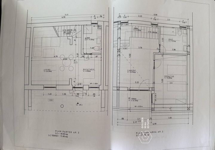
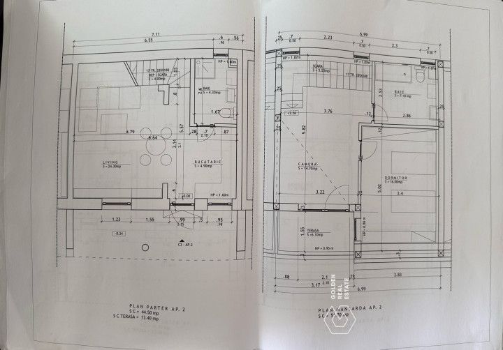
CASA 2 si Casa 3 sunt in oglinda, compuse din P+M si au o suprafata generoasa de 109,6mp. 

Parterul in suprafata de 44,5 mp plus terasa 13,40 este compus din living (24.3mp) impreuna cu bucatarie (4,90mp) si baie(4,3mp).               

Mansarda in suprafata de 51,70 mp gazduieste o camera de zi, un dormitor, baie si un balcon deschis in suprafata de 6.10mp.

 Imobilul dispune de geamuri termopan, gresie tip parchet, parchet laminat, faianta, obiecte sanitare.

Casa se poate cumpara și în rate fixe, cu condiția achitării unui avans de 60%.

 Pret: CASA 2/3 89.999 euro, negociabil.

 Agent exclusiv Golden Real Estate.

Citește mai mult

  • Număr camere
    3
  • Dormitoare
    2
  • Număr bucătării
    1
  • Număr băi
    1
  • Disponibilitate
    Imediat
  • Tip casă
    Individual
  • Stare interior
    Bună
  • Suprafață utilă
    100 mp
  • Suprafață construită
    149 mp
  • Suprafață teren
    20 mp
  • Stadiu construcție
    Finalizată
  • An construcție
    2000

Facilități

Apă
Canalizare
CATV
Curent
Gaz
Internet
Daniela Dranau - Golden Real Estate
Daniela Dranau
Sales Associate

0371 546 700


Solicită chiar acum o vizionare
Nume
Telefon
Email
Sună acum Solicită vizionare
Necesare:

Site-ul nu poate funcționa corect fără aceste cookie-uri. Vezi cookie-urile

Statistică:

Strângem statistici anonime despre voi, vizitatorii unici, pentru a vă îmbunătăți experiența dumneavoastră. Vezi cookie-urile

Marketing:

Pentru a ne promova mai eficient serviciile noastre, folosim cookies pentru a vă identifica și a vă oferi proprietăți și servicii personalizate. Vezi cookie-urile

Acest site folosește cookies, află detalii. Alege ce tipuri de cookies dorești să permitem: