ID CP2444695

Casa GALATEA, 350 mp teren, Cartierul ATHENA, comision 0%

ID CP2444695

112,900 €

Casă / Vilă cu 3 camere de vânzare
6 Vanatori, Arad
60 mp
2022

ID: CP2444695

Golden Real Estate vă propune spre vânzare casa „GALATEA” cu un teren generos, în noul cartier rezidenţial ATHENA, cu cele mai reduse costuri de întreținere.

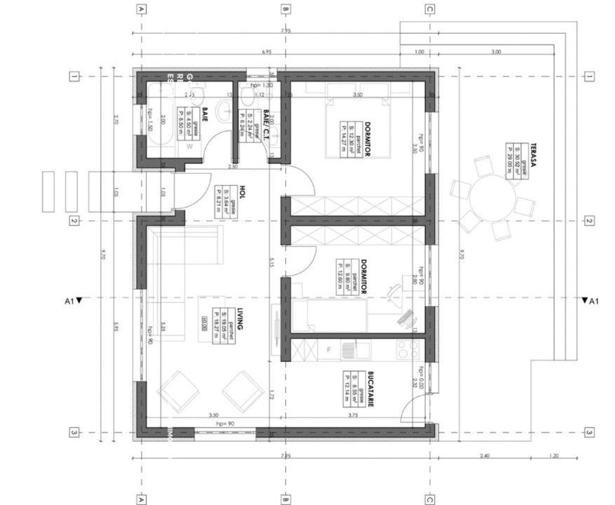
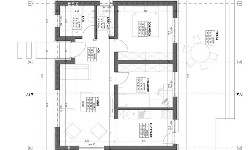
Casa unifamilială este construită pe o suprafață de minim 400 mp de teren, are o suprafață construită de 77 mp și este formată din două dormitoare, un living, o bucătărie, baie și cameră tehnică.

Imobilul este construit din cărămidă tip Porotherm, cu stâlpi de susținere din beton, iar exteriorul este izolat cu polistiren de 10 cm și tencuit cu structurat alb.

Preţ: 112.900 euro + TVA

        76.000 euro + TVA la stadiul "rosu"

COMISION 0%

Agent Golden Real Estate

Citește mai mult

  • Număr camere
    3
  • Număr bucătării
    1
  • Număr băi
    1
  • Geam la baie
    Da
  • Număr terase
    1
  • Disponibilitate
    Imediat
  • Tip casă
    Individual
  • Stare interior
    Nou
  • Suprafață utilă
    60 mp
  • Suprafață construită
    77 mp
  • Suprafață teren
    350 mp
  • Stadiu construcție
    Semifinisat
  • An construcție
    2022
  • Tip construcție
    Cărămidă

Facilități

Apă
Apometre
Canalizare
Contor căldură
Contor gaz
Curent
Gaz
Geamuri termopan
Iluminat stradal
Izolație exterioară
Mijloace de transport în comun
Străzi asfaltate
Ușă intrare PVC
Ionela Pele
Sales Associate

0371 546 700


Solicită chiar acum o vizionare
Nume
Telefon
Email
Sună acum Solicită vizionare
Necesare:

Site-ul nu poate funcționa corect fără aceste cookie-uri. Vezi cookie-urile

Statistică:

Strângem statistici anonime despre voi, vizitatorii unici, pentru a vă îmbunătăți experiența dumneavoastră. Vezi cookie-urile

Marketing:

Pentru a ne promova mai eficient serviciile noastre, folosim cookies pentru a vă identifica și a vă oferi proprietăți și servicii personalizate. Vezi cookie-urile

Acest site folosește cookies, află detalii. Alege ce tipuri de cookies dorești să permitem: